même faisceau électrique pour 2cv6 avec compteur petit et grand modèle ?
Modérateurs : Deuchémoi, zamzam, Eric13190
- Nicolas3881
- Deuchiste intermédiaire

- Messages : 115
- Enregistré le : 15 nov. 2022, 15:39
- Ma deuche : 2CV6
- Date de naissance : 26 nov. 1981
- Localisation : Grenoble
même faisceau électrique pour 2cv6 avec compteur petit et grand modèle ?
Bonjour,
Question peut-être idiote mais je ne trouve pas la réponse. Est-ce que le faisceaux électrique est le même pour une 2cv6 avec compteur petit et grand modèle ?
J'aimerais refaire un retour à l'origine.
Je vous remercie.
Question peut-être idiote mais je ne trouve pas la réponse. Est-ce que le faisceaux électrique est le même pour une 2cv6 avec compteur petit et grand modèle ?
J'aimerais refaire un retour à l'origine.
Je vous remercie.
- Eric13190
- Docteur deuchiste

- Messages : 9609
- Enregistré le : 01 janv. 2020, 15:10
- Ma deuche : 2 cv6 club 1976
- Date de naissance : 04 sept. 1973
- Localisation : Allauch
- Âge : 52
Re: Faisceaux électrique grand compteur et petit compteur
Salut,
Je ne crois pas, il y a moins de voyants sur le grand compteur qui lui compte le voltmètre en plus.
C'est donc logique qu'ils soient différents.
Attends d'autres avis
Je ne crois pas, il y a moins de voyants sur le grand compteur qui lui compte le voltmètre en plus.
C'est donc logique qu'ils soient différents.
Attends d'autres avis
"La 2cv est une des rares voiture où l'important reste la personne". Quino

- Nicolas3881
- Deuchiste intermédiaire

- Messages : 115
- Enregistré le : 15 nov. 2022, 15:39
- Ma deuche : 2CV6
- Date de naissance : 26 nov. 1981
- Localisation : Grenoble
Re: Faisceaux électrique grand compteur et petit compteur
Je pense aussi mais en refabrication je ne trouve qu'un seul modèle pour 2cv6. D'où ma question.
- Eric13190
- Docteur deuchiste

- Messages : 9609
- Enregistré le : 01 janv. 2020, 15:10
- Ma deuche : 2 cv6 club 1976
- Date de naissance : 04 sept. 1973
- Localisation : Allauch
- Âge : 52
Re: Faisceaux électrique grand compteur et petit compteur
A première vue, le faisceau proposé par MCC est adopté au deuxième, il est demande d'isoler les prises non utilisées.
"La 2cv est une des rares voiture où l'important reste la personne". Quino

- CHARLYSTONE
- Docteur deuchiste

- Messages : 7177
- Enregistré le : 27 févr. 2018, 14:52
- Ma deuche : 2cv charleston de 06. 1990 2cv6 04.1983
- Date de naissance : 30 avr. 1958
- Localisation : 38 pres de bourgoin jallieu
Re: Faisceaux électrique grand compteur et petit compteur
Bonjour, la seule différence, pour le grand compteur type charleston, c'est le contrôle de charge batterie, 2 fils,le plafonnier, sinon tout le reste est identique, petit ou grand compteur, attention pour une 2CV 6 à partir de 1981,tu peux voir aussi le schéma électrique
- Nicolas3881
- Deuchiste intermédiaire

- Messages : 115
- Enregistré le : 15 nov. 2022, 15:39
- Ma deuche : 2CV6
- Date de naissance : 26 nov. 1981
- Localisation : Grenoble
Re: Faisceaux électrique grand compteur et petit compteur
Merci Charlystone ! Je peux donc conserver mon faisceau, c'est déjà une dépense de moins.
- CHARLYSTONE
- Docteur deuchiste

- Messages : 7177
- Enregistré le : 27 févr. 2018, 14:52
- Ma deuche : 2cv charleston de 06. 1990 2cv6 04.1983
- Date de naissance : 30 avr. 1958
- Localisation : 38 pres de bourgoin jallieu
Re: Faisceaux électrique grand compteur et petit compteur
Elle de quelle année ta 2CV 6,si tu a besoin d'aide n'hésite pas, je suis près de chez toi vers Bourgoin 
- Eric13190
- Docteur deuchiste

- Messages : 9609
- Enregistré le : 01 janv. 2020, 15:10
- Ma deuche : 2 cv6 club 1976
- Date de naissance : 04 sept. 1973
- Localisation : Allauch
- Âge : 52
Re: Faisceaux électrique grand compteur et petit compteur
"La 2cv est une des rares voiture où l'important reste la personne". Quino

- Nicolas3881
- Deuchiste intermédiaire

- Messages : 115
- Enregistré le : 15 nov. 2022, 15:39
- Ma deuche : 2CV6
- Date de naissance : 26 nov. 1981
- Localisation : Grenoble
Re: Faisceaux électrique grand compteur et petit compteur
juin 1984, ce n'est pas pour la mienne.
Administrativement c'est une 2cv6 special mais dans les fait elle est reconstituée autour d'une carte grise..
J'essaie d’insuffler une cohérence dans la restauration.
Administrativement c'est une 2cv6 special mais dans les fait elle est reconstituée autour d'une carte grise..
J'essaie d’insuffler une cohérence dans la restauration.
- Nicolas3881
- Deuchiste intermédiaire

- Messages : 115
- Enregistré le : 15 nov. 2022, 15:39
- Ma deuche : 2CV6
- Date de naissance : 26 nov. 1981
- Localisation : Grenoble
Re: Faisceaux électrique grand compteur et petit compteur
Merci à toi !CHARLYSTONE a écrit : ↑05 avr. 2024, 12:34 Elle de quelle année ta 2CV 6,si tu a besoin d'aide n'hésite pas, je suis près de chez toi vers Bourgoin![]()
- Eric13190
- Docteur deuchiste

- Messages : 9609
- Enregistré le : 01 janv. 2020, 15:10
- Ma deuche : 2 cv6 club 1976
- Date de naissance : 04 sept. 1973
- Localisation : Allauch
- Âge : 52
Re: Faisceaux électrique grand compteur et petit compteur
Désolé, je ne savais pas
Oui se sont des choses qui arriveNicolas3881 a écrit : ↑05 avr. 2024, 13:34 c'est une 2cv6 special mais dans les fait elle est reconstituée autour d'une carte grise...
"La 2cv est une des rares voiture où l'important reste la personne". Quino

- Nicolas3881
- Deuchiste intermédiaire

- Messages : 115
- Enregistré le : 15 nov. 2022, 15:39
- Ma deuche : 2CV6
- Date de naissance : 26 nov. 1981
- Localisation : Grenoble
Re: même faisceau électrique pour 2cv6 avec compteur petit et grand modèle ?
Autre question sur le faisceau. Je vais passer sur un tableau de bord petit compteur + commandes rondes car véhicule d'avant 85.
Ces commandes (essui glace par ex) sont équipées de connecteurs rond. Mon faisceau d'origine est équipé de fiches plates.
Question pour de bonnes pratiques et respect de l'origine (histoire de pas prendre peu quand on regarde derrière le tableau de bord), je coupe les fiches et remplace par des rondes ? Je fais des adaptateurs plats vers rond ?
merci.
Ces commandes (essui glace par ex) sont équipées de connecteurs rond. Mon faisceau d'origine est équipé de fiches plates.
Question pour de bonnes pratiques et respect de l'origine (histoire de pas prendre peu quand on regarde derrière le tableau de bord), je coupe les fiches et remplace par des rondes ? Je fais des adaptateurs plats vers rond ?
merci.
- Deuchémoi
- Docteur deuchiste

- Messages : 17144
- Enregistré le : 19 sept. 2009, 17:09
- Ma deuche : 2cv6 Spécial AZKA Bleue céleste 11/87
- Date de naissance : 30 oct. 1968
- Localisation : Vitrolles (13) ... au soleil !!!
Re: même faisceau électrique pour 2cv6 avec compteur petit et grand modèle ?
Comme en plomberie : moins il y a de raccords, moins il y a de risque de fuites ...Nicolas3881 a écrit : ↑10 juin 2024, 14:28 je coupe les fiches et remplace par des rondes ? Je fais des adaptateurs plats vers rond ?
Pas de demande d'aide mécanique en Message Privé. Toutes les demandes se font dans les salons publics. Merci !
/¯\(°\=/°)... Ma présentation
2cv6 Spécial AZKA Bleue céleste 11/87
- JPA_47
- Docteur deuchiste

- Messages : 1727
- Enregistré le : 01 juil. 2023, 13:41
- Ma deuche : 2CV AZAM 1966
- Date de naissance : 05 févr. 1958
- Localisation : 47 MARMANDE
Re: même faisceau électrique pour 2cv6 avec compteur petit et grand modèle ?
Bonjour @Nicolas3881 , bonjour à tous,
Tu as raison de remplacer les fiches plates par des rondes.
On en trouve facilement, même si elles ne sont pas données...
https://www.mehariclub.com/fr/1120020-- ... s-10-tube/
On peut aussi en fabriquer, à partir de ces cosses cylindriques : https://www.classicautoelec.com/fr/3782 ... es-citroen
En ajoutant de la gaine thermorétractable côté fil et un manchon sur la cosse, coupé dans du tuyau d'essence de 5mm de diamètre...
https://fr.aliexpress.com/item/10050065 ... OkQAvD_BwE
Suivant le nombre de cosses à réaliser, ce montage peut être plus économique...
Bonne après-midi à tous !
Jean-Pierre
Tu as raison de remplacer les fiches plates par des rondes.
On en trouve facilement, même si elles ne sont pas données...
https://www.mehariclub.com/fr/1120020-- ... s-10-tube/
On peut aussi en fabriquer, à partir de ces cosses cylindriques : https://www.classicautoelec.com/fr/3782 ... es-citroen
En ajoutant de la gaine thermorétractable côté fil et un manchon sur la cosse, coupé dans du tuyau d'essence de 5mm de diamètre...
https://fr.aliexpress.com/item/10050065 ... OkQAvD_BwE
Suivant le nombre de cosses à réaliser, ce montage peut être plus économique...
Bonne après-midi à tous !
Jean-Pierre
- Nicolas3881
- Deuchiste intermédiaire

- Messages : 115
- Enregistré le : 15 nov. 2022, 15:39
- Ma deuche : 2CV6
- Date de naissance : 26 nov. 1981
- Localisation : Grenoble
Re: même faisceau électrique pour 2cv6 avec compteur petit et grand modèle ?
Merci à vous deux ! Je vais donc remplacer les cosses.
Top les liens, je vais commande en vrac. Le lot chez mcc est bien mais bon le prix..
Je viens de réaliser que sur la spécial y'a vraiment pas grand chose comme voyant..
Top les liens, je vais commande en vrac. Le lot chez mcc est bien mais bon le prix..
Je viens de réaliser que sur la spécial y'a vraiment pas grand chose comme voyant..
- CHARLYSTONE
- Docteur deuchiste

- Messages : 7177
- Enregistré le : 27 févr. 2018, 14:52
- Ma deuche : 2cv charleston de 06. 1990 2cv6 04.1983
- Date de naissance : 30 avr. 1958
- Localisation : 38 pres de bourgoin jallieu
Re: même faisceau électrique pour 2cv6 avec compteur petit et grand modèle ?
Bonjour Nicolas, les cosses pour les interrupteurs sont des femelles ronde de 3mm, tu dit que tu a pas beaucoup de voyants, pourtant tu a 2 cosses plates dans le tableau de bord, qui ne sont pas branché, 1 pour les plein phares et l'autre celle des clignotants, tu pourras en profiter pour les branché, mais il te faut 2 voyants 1 vert et 1 bleu 
- Nicolas3881
- Deuchiste intermédiaire

- Messages : 115
- Enregistré le : 15 nov. 2022, 15:39
- Ma deuche : 2CV6
- Date de naissance : 26 nov. 1981
- Localisation : Grenoble
Re: même faisceau électrique pour 2cv6 avec compteur petit et grand modèle ?
C'est top ça comme info ! Merci Charlystone !
Je n'ai pas eu le temps de bosser sur titine hier soir mais il me semble quand même qu'il va rester pas de connecteurs en attente. A confirmer.
Par contre pour le bouton "Warning", je suis obligé de couper à ras le connecteur noir rectangulaire et de sertir des cosses de cylindrique de 4mm. Pas de pb sur la manip mais la correspondance des couleurs n'y est pas, je me retrouve avec deux verts et un violet.
Autre chose à quoi servent la broche sur le côté du warning et des feux d'essuie glace ? Ce serait des masses ?
Merci.
Je n'ai pas eu le temps de bosser sur titine hier soir mais il me semble quand même qu'il va rester pas de connecteurs en attente. A confirmer.
Par contre pour le bouton "Warning", je suis obligé de couper à ras le connecteur noir rectangulaire et de sertir des cosses de cylindrique de 4mm. Pas de pb sur la manip mais la correspondance des couleurs n'y est pas, je me retrouve avec deux verts et un violet.
Autre chose à quoi servent la broche sur le côté du warning et des feux d'essuie glace ? Ce serait des masses ?
Merci.
- Fichiers joints
-
- 01.jpg (74.78 Kio) Vu 4276 fois
-
- 02.jpg (63.11 Kio) Vu 4276 fois
- JPA_47
- Docteur deuchiste

- Messages : 1727
- Enregistré le : 01 juil. 2023, 13:41
- Ma deuche : 2CV AZAM 1966
- Date de naissance : 05 févr. 1958
- Localisation : 47 MARMANDE
Re: même faisceau électrique pour 2cv6 avec compteur petit et grand modèle ?
Bonsoir @Nicolas3881 , bonsoir à tous,
Non, il n'y a aucune masse sur ces interrupteurs.
On ne trouve généralement pas de fil de masse, puisque la carrosserie sert de conducteur de masse..
Celui que tu désignes comme le bouton de "warning", c'est le contacteur de feux de stationnement, obligatoires à l'époque de la sortie de ta 2CV.
Le code de la route imposait alors que si un conducteur laissait stationnée son véhicule dans une rue non éclairée, il devait allumer les feux de stationnement côté rue.
Plutôt que d'ajouter des feux supplémentaires, le constructeur a simplement utilisé les feux de position (veilleuses) comme feux de stationnement.
Il a trois positions : une centrale, une droite et une gauche.
Il y a donc trois fils : un positif, un pour les feux de position gauches et un pour les feux de position droits.
Pour l'essuie-glace, il y a deux positifs : un qui alimente le moteur pour la marche normale, et un autre, qui alimente le moteur pour que le mouvement des balais s'arrête en bas du pare-brise...
Voilà !
Bonne soirée à tous
Jean-Pierre
Non, il n'y a aucune masse sur ces interrupteurs.
On ne trouve généralement pas de fil de masse, puisque la carrosserie sert de conducteur de masse..
Celui que tu désignes comme le bouton de "warning", c'est le contacteur de feux de stationnement, obligatoires à l'époque de la sortie de ta 2CV.
Le code de la route imposait alors que si un conducteur laissait stationnée son véhicule dans une rue non éclairée, il devait allumer les feux de stationnement côté rue.
Plutôt que d'ajouter des feux supplémentaires, le constructeur a simplement utilisé les feux de position (veilleuses) comme feux de stationnement.
Il a trois positions : une centrale, une droite et une gauche.
Il y a donc trois fils : un positif, un pour les feux de position gauches et un pour les feux de position droits.
Pour l'essuie-glace, il y a deux positifs : un qui alimente le moteur pour la marche normale, et un autre, qui alimente le moteur pour que le mouvement des balais s'arrête en bas du pare-brise...
Voilà !
Bonne soirée à tous
Jean-Pierre
- CHARLYSTONE
- Docteur deuchiste

- Messages : 7177
- Enregistré le : 27 févr. 2018, 14:52
- Ma deuche : 2cv charleston de 06. 1990 2cv6 04.1983
- Date de naissance : 30 avr. 1958
- Localisation : 38 pres de bourgoin jallieu
Re: même faisceau électrique pour 2cv6 avec compteur petit et grand modèle ?
Bonjour, désolé @JPAZA tu fais une erreur le bouton avec la flèche c'est bien les warning, il servais avant de bouton pour feux de position, mais pour des raisons économiques Citroën l'a monté, après 1970,sur les 2CV et dérivés, lorsque les warning sont devenus obligatoires 
- JPA_47
- Docteur deuchiste

- Messages : 1727
- Enregistré le : 01 juil. 2023, 13:41
- Ma deuche : 2CV AZAM 1966
- Date de naissance : 05 févr. 1958
- Localisation : 47 MARMANDE
Re: même faisceau électrique pour 2cv6 avec compteur petit et grand modèle ?
Bonjour @CHARLYSTONE , bonjour à tous,
Merci, @CHARLYSTONE , désolé d'avoir induit en erreur nos amis...
J'ignorais cette "récupération" du constructeur pour en faire un bouton de warning... Même si ça ne m'étonne pas, vu leur tendance aux économies tous azimut !
Je me suis trompé, j'ai appris quelque chose !
Bonne journée à tous
Jean-Pierre
Merci, @CHARLYSTONE , désolé d'avoir induit en erreur nos amis...
J'ignorais cette "récupération" du constructeur pour en faire un bouton de warning... Même si ça ne m'étonne pas, vu leur tendance aux économies tous azimut !
Je me suis trompé, j'ai appris quelque chose !
Bonne journée à tous
Jean-Pierre
- CHARLYSTONE
- Docteur deuchiste

- Messages : 7177
- Enregistré le : 27 févr. 2018, 14:52
- Ma deuche : 2cv charleston de 06. 1990 2cv6 04.1983
- Date de naissance : 30 avr. 1958
- Localisation : 38 pres de bourgoin jallieu
Re: même faisceau électrique pour 2cv6 avec compteur petit et grand modèle ?
Mais y pas de soucis, JPA_47, ont en apprend tous les jours, la 2CV n'a pas dévoilé tout ses secrets 
- Nicolas3881
- Deuchiste intermédiaire

- Messages : 115
- Enregistré le : 15 nov. 2022, 15:39
- Ma deuche : 2CV6
- Date de naissance : 26 nov. 1981
- Localisation : Grenoble
Re: même faisceau électrique pour 2cv6 avec compteur petit et grand modèle ?
Très enrichissant vos réponses ! Merci à vous deux !
Normalement je teste demain. J'espère ne pas tout faire fumer !
Normalement je teste demain. J'espère ne pas tout faire fumer !
- CHARLYSTONE
- Docteur deuchiste

- Messages : 7177
- Enregistré le : 27 févr. 2018, 14:52
- Ma deuche : 2cv charleston de 06. 1990 2cv6 04.1983
- Date de naissance : 30 avr. 1958
- Localisation : 38 pres de bourgoin jallieu
Re: même faisceau électrique pour 2cv6 avec compteur petit et grand modèle ?
Bonjour, petite anecdote sur l'économie que fesai les constructeurs, Henri Ford, exigé de ses clients, qu'ils livre les pièces, en sous-traitance de ses fournisseurs, dans des caisses en bois, pour ensuite récupérer les petites planches et les remettait sur ses véhicules, les Ford T, comme ça il fesai une sacré économie
- Nicolas3881
- Deuchiste intermédiaire

- Messages : 115
- Enregistré le : 15 nov. 2022, 15:39
- Ma deuche : 2CV6
- Date de naissance : 26 nov. 1981
- Localisation : Grenoble
Re: même faisceau électrique pour 2cv6 avec compteur petit et grand modèle ?
J’espère que les tendeurs des sièges de ma 2cv ne sont pas fabriqués à partir des élastiques de culottes des anciens propriétaires.. 
J’ai travaillé sur mon faisceau. J’ai réussi à tout câbler sauf le bouton warning. Je ne vois pas comment adapter le câblage du modèle carré vers l’ancien.
J’ai travaillé sur mon faisceau. J’ai réussi à tout câbler sauf le bouton warning. Je ne vois pas comment adapter le câblage du modèle carré vers l’ancien.
- JPA_47
- Docteur deuchiste

- Messages : 1727
- Enregistré le : 01 juil. 2023, 13:41
- Ma deuche : 2CV AZAM 1966
- Date de naissance : 05 févr. 1958
- Localisation : 47 MARMANDE
Re: même faisceau électrique pour 2cv6 avec compteur petit et grand modèle ?
Bonjour @Nicolas3881 , bonjour à tous,
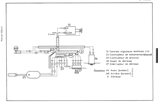
Voici une copie des schémas de branchement d'un dispositif de signal de détresse : Pour les anciens modèles, le signal de détresse était vendu en tant qu'accessoire par le Département des Pièces Détachées : L'interrupteur du schéma ressemble au tien sur ce dernier schéma..
Enfin, le schéma général, AZ après 9/74 incorporant le signal de détresse d'origine : En espérant t'avoir aidé...
Bon week-end à tous !
Jean-Pierre
Voici une copie des schémas de branchement d'un dispositif de signal de détresse : Pour les anciens modèles, le signal de détresse était vendu en tant qu'accessoire par le Département des Pièces Détachées : L'interrupteur du schéma ressemble au tien sur ce dernier schéma..
Enfin, le schéma général, AZ après 9/74 incorporant le signal de détresse d'origine : En espérant t'avoir aidé...
Bon week-end à tous !
Jean-Pierre
- Nicolas3881
- Deuchiste intermédiaire

- Messages : 115
- Enregistré le : 15 nov. 2022, 15:39
- Ma deuche : 2CV6
- Date de naissance : 26 nov. 1981
- Localisation : Grenoble
Re: même faisceau électrique pour 2cv6 avec compteur petit et grand modèle ?
Bonjour à tous !
Jean-Pierre, navré de ne pas t'avoir répondu plus tôt mais entre temps j'ai du restauré 4 portes en piteux états, peindre tous les éléments et remplacer la boite de vitesse qui a cassé après 10 mètres d'essai routiers..
Mais tes réponses m'ont beaucoup aidé.
Bref tout cela étant normalement derrière moi, j'en reviens à mon faisceau et y'a du boulot. Hier soir je me suis rendu compte que:
-en appuyant sur les freins (purge hier soir) les feux avant s'allumaient au lieu de ceux de derrière.
-A l'arrière seul le clignotant droit fonctionne, rien d'autre.
-Clignotant à droite, la centrale fait bien son clac clac. A gauche non.
-Devant les feux, c'est chacun fait comme il veut. Plein phare pour le droit mais pas le gauche, veilleuse d'un côté mais pas de l'autre..
Je précise que :
-toutes les ampoules fonctionnent. Faut pas abuser non plus.
-le branchement du faisceau avant et arrière est ok. Je ne me suis pas trompé.
Pistes possibles pour moi:
-j'ai mal remonté le comodo de feux et intervertis des fils ?
-la centrale de clignotant est HS?
-j'ai tout monté de travers au niveau du tableau de bord ?
-ma 2cv a servie a tourner dans le gendarme et les extra-terrestre et ne s'en est jamais remis ?
A votre bon coeur ! merci !
Jean-Pierre, navré de ne pas t'avoir répondu plus tôt mais entre temps j'ai du restauré 4 portes en piteux états, peindre tous les éléments et remplacer la boite de vitesse qui a cassé après 10 mètres d'essai routiers..
Mais tes réponses m'ont beaucoup aidé.
Bref tout cela étant normalement derrière moi, j'en reviens à mon faisceau et y'a du boulot. Hier soir je me suis rendu compte que:
-en appuyant sur les freins (purge hier soir) les feux avant s'allumaient au lieu de ceux de derrière.
-A l'arrière seul le clignotant droit fonctionne, rien d'autre.
-Clignotant à droite, la centrale fait bien son clac clac. A gauche non.
-Devant les feux, c'est chacun fait comme il veut. Plein phare pour le droit mais pas le gauche, veilleuse d'un côté mais pas de l'autre..
Je précise que :
-toutes les ampoules fonctionnent. Faut pas abuser non plus.
-le branchement du faisceau avant et arrière est ok. Je ne me suis pas trompé.
Pistes possibles pour moi:
-j'ai mal remonté le comodo de feux et intervertis des fils ?
-la centrale de clignotant est HS?
-j'ai tout monté de travers au niveau du tableau de bord ?
-ma 2cv a servie a tourner dans le gendarme et les extra-terrestre et ne s'en est jamais remis ?
A votre bon coeur ! merci !
- JPA_47
- Docteur deuchiste

- Messages : 1727
- Enregistré le : 01 juil. 2023, 13:41
- Ma deuche : 2CV AZAM 1966
- Date de naissance : 05 févr. 1958
- Localisation : 47 MARMANDE
Re: même faisceau électrique pour 2cv6 avec compteur petit et grand modèle ?
Bonjour @Nicolas3881 , bonjour à tous
Pas de soucis, Nicolas, je suis ravi de t'avoir (un peu) aidé !
Vérifie d'abord le branchement des phares et des feux avant sur le bloc de connexions, côté barre des phares : il se peut que tu aies interverti le fil du clignotant et celui d'un feu.
Pour les feux "stop", ça n'est pas à cet endroit, peut-être là aussi d'une inversion de fils, mais du côté du bloc de connexions qui est près de la batterie.
Si le couleurs sont encore visibles sur les isolants des cosses, tu dois pouvoir t'y retrouver avec le schéma du montage de l'installation électrique que j'ai publié sur le message précédent...
Rassure-toi, ça ne doit pas être très compliqué à trouver...
Bonne recherche, tiens-nous au courant, merci !
Jean-Pierre
PS : "au courant", bien sûr, pour des problèmes de branchements électriques
Pas de soucis, Nicolas, je suis ravi de t'avoir (un peu) aidé !
Vérifie d'abord le branchement des phares et des feux avant sur le bloc de connexions, côté barre des phares : il se peut que tu aies interverti le fil du clignotant et celui d'un feu.
Pour les feux "stop", ça n'est pas à cet endroit, peut-être là aussi d'une inversion de fils, mais du côté du bloc de connexions qui est près de la batterie.
Si le couleurs sont encore visibles sur les isolants des cosses, tu dois pouvoir t'y retrouver avec le schéma du montage de l'installation électrique que j'ai publié sur le message précédent...
Rassure-toi, ça ne doit pas être très compliqué à trouver...
Bonne recherche, tiens-nous au courant, merci !
Jean-Pierre
PS : "au courant", bien sûr, pour des problèmes de branchements électriques
- Nicolas3881
- Deuchiste intermédiaire

- Messages : 115
- Enregistré le : 15 nov. 2022, 15:39
- Ma deuche : 2CV6
- Date de naissance : 26 nov. 1981
- Localisation : Grenoble
Re: même faisceau électrique pour 2cv6 avec compteur petit et grand modèle ?
Hello !
Je n'ai pas eu le temps de beaucoup passer par le forum ces derniers jours. J'ai pu régler mes pbs de faisceaux mis à part deux détails:
-Centrale clignotante HS, après remplacement j'avais des clignotants des 2 côtés.
-J'ai branché la mauvais paire de connecteurs sur le contact feu stop. Avec les bons connecteurs, c'est bien les feux arrières qui s’allument et pas ceux de devant.
-Faux contacts dans les connecteurs des ampoules de phare apparus pendant les essais. Du coup je cherchais une cause côté faisceaux mais c'était dans les phares.
-Mauvais câblage d'origine (enfin c'était comme ça quand je l'ai acheté) au niveau du commodo de phare.
Tout mis bout à bout..
Reste la transformation du faisceau pour un bouton warning rond que je ne comprends pas et l'arrêt temporisé (enfin à plat) des essuis glace qui ne marchent plus avec le contacteur rond.
Mais je peux rouler !
Merci à tous.
Je n'ai pas eu le temps de beaucoup passer par le forum ces derniers jours. J'ai pu régler mes pbs de faisceaux mis à part deux détails:
-Centrale clignotante HS, après remplacement j'avais des clignotants des 2 côtés.
-J'ai branché la mauvais paire de connecteurs sur le contact feu stop. Avec les bons connecteurs, c'est bien les feux arrières qui s’allument et pas ceux de devant.
-Faux contacts dans les connecteurs des ampoules de phare apparus pendant les essais. Du coup je cherchais une cause côté faisceaux mais c'était dans les phares.
-Mauvais câblage d'origine (enfin c'était comme ça quand je l'ai acheté) au niveau du commodo de phare.
Tout mis bout à bout..
Reste la transformation du faisceau pour un bouton warning rond que je ne comprends pas et l'arrêt temporisé (enfin à plat) des essuis glace qui ne marchent plus avec le contacteur rond.
Mais je peux rouler !
Merci à tous.
- amideuche
- Deuchiste intéressé

- Messages : 65
- Enregistré le : 21 mai 2020, 09:29
- Ma deuche : 2cv6 Spécial de 82, restauration en cours
- Date de naissance : 16 déc. 1961
- Localisation : Pas de Calais
Re: même faisceau électrique pour 2cv6 avec compteur petit et grand modèle ?
Bonjour
Je viens de rénover 2 faisceaux de 2cv différents
L'un pour un bouton de warning rond et l'autre rectangulaire
J'ai constaté qu'avec le bouton rond les clignotants fonctionnaient sans le contact tandis qu'avec le bouton rectangulaire ils fonctionnent avec le contact.
Pour le retour des essuies glace soit il te manque la polarité de retour automatique, soit il y a un problème avec le contact à came intégré au moteur.
Je viens de rénover 2 faisceaux de 2cv différents
L'un pour un bouton de warning rond et l'autre rectangulaire
J'ai constaté qu'avec le bouton rond les clignotants fonctionnaient sans le contact tandis qu'avec le bouton rectangulaire ils fonctionnent avec le contact.
Pour le retour des essuies glace soit il te manque la polarité de retour automatique, soit il y a un problème avec le contact à came intégré au moteur.
- CHARLYSTONE
- Docteur deuchiste

- Messages : 7177
- Enregistré le : 27 févr. 2018, 14:52
- Ma deuche : 2cv charleston de 06. 1990 2cv6 04.1983
- Date de naissance : 30 avr. 1958
- Localisation : 38 pres de bourgoin jallieu
Re: même faisceau électrique pour 2cv6 avec compteur petit et grand modèle ?
Bonjour, effectivement les clignotants fonctionne contact coupé sur ma 2cv spéciale de 83 avec boutons rond et ma charleston de 90, boutons carrés, fonctionne avec le contact mis